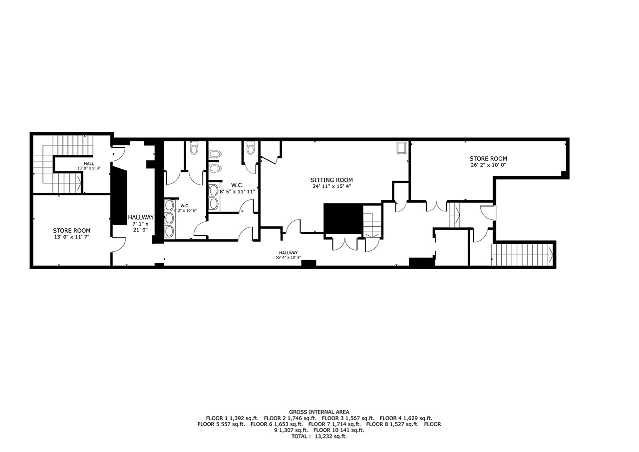
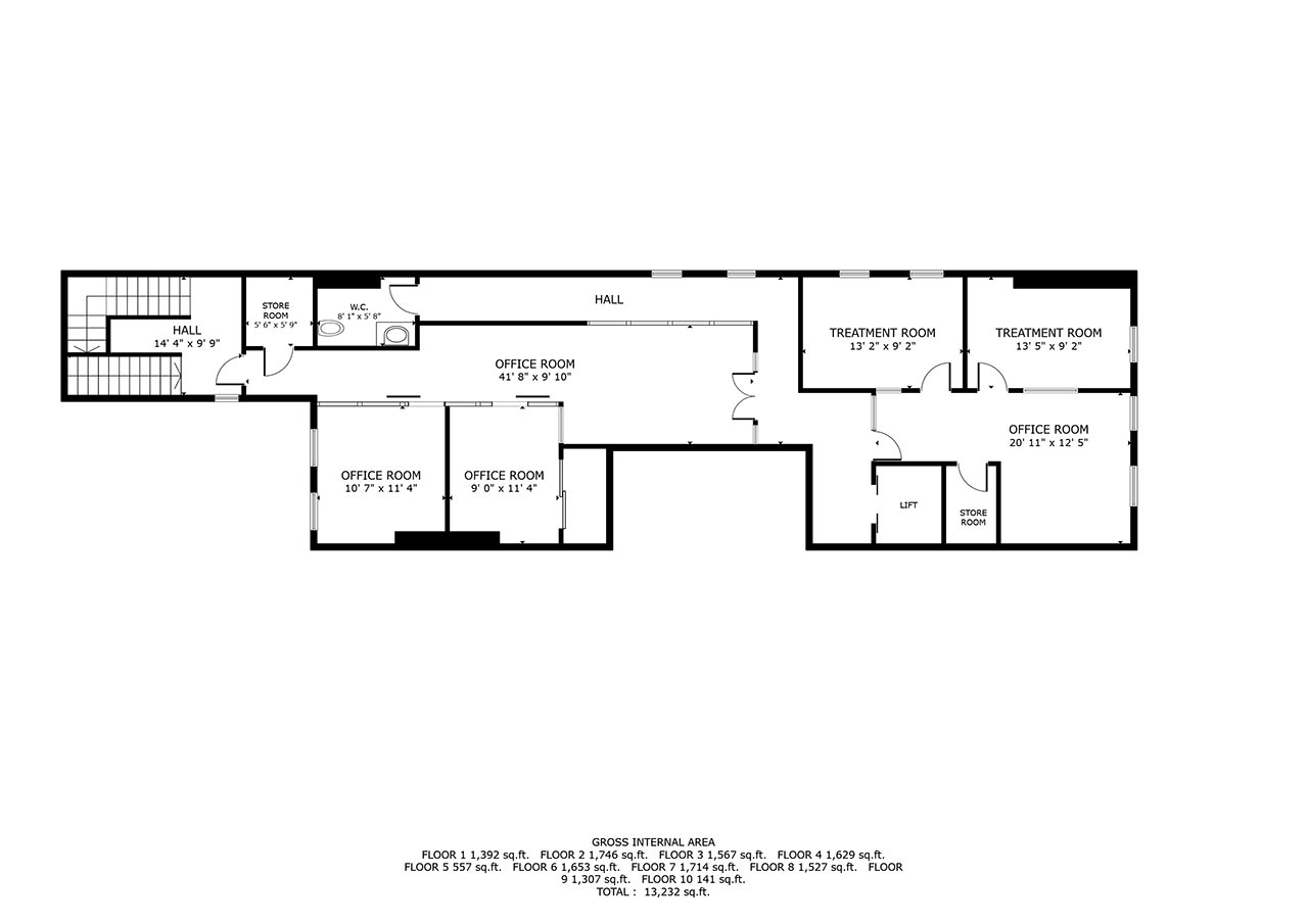
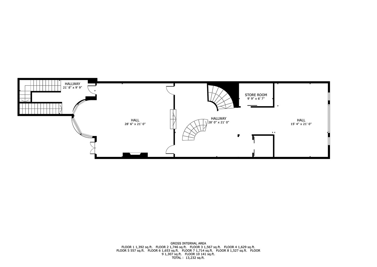
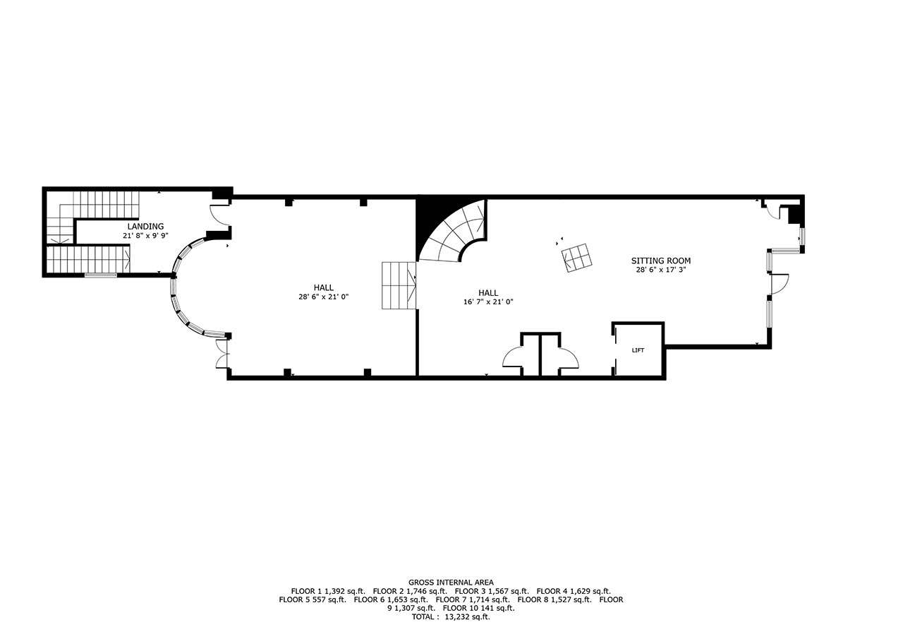
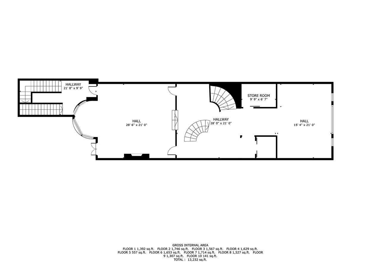
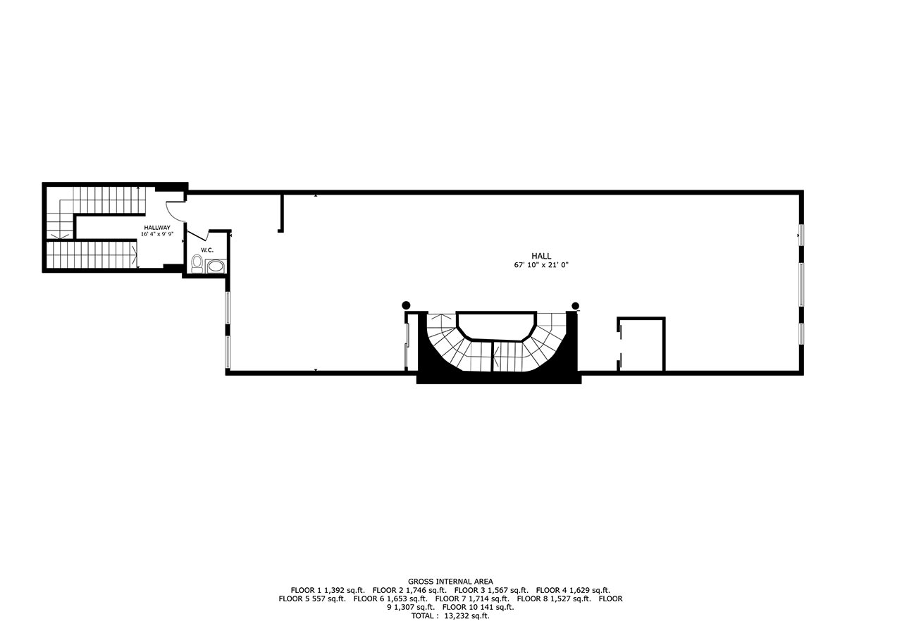
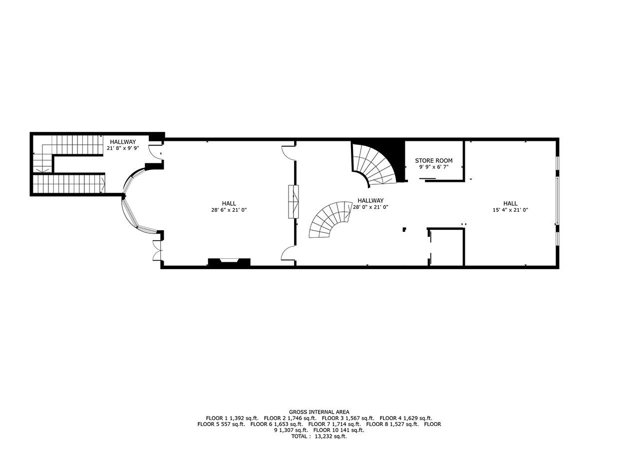
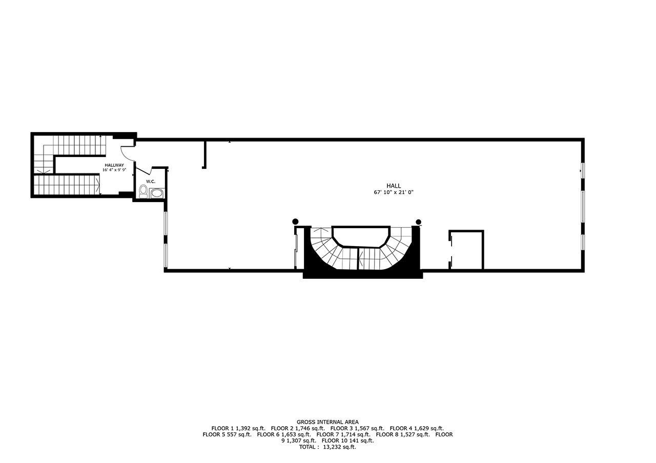
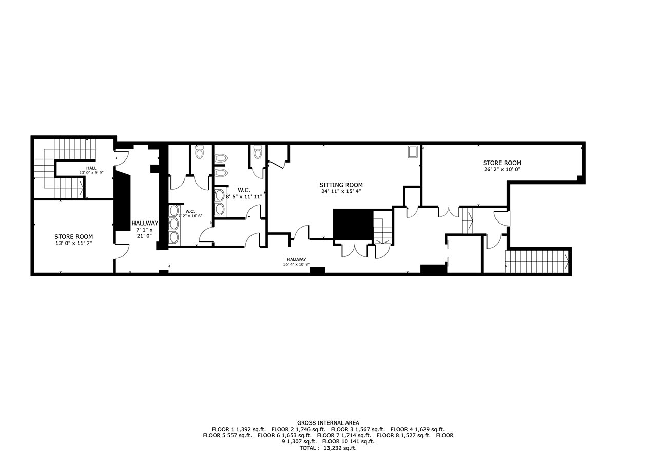
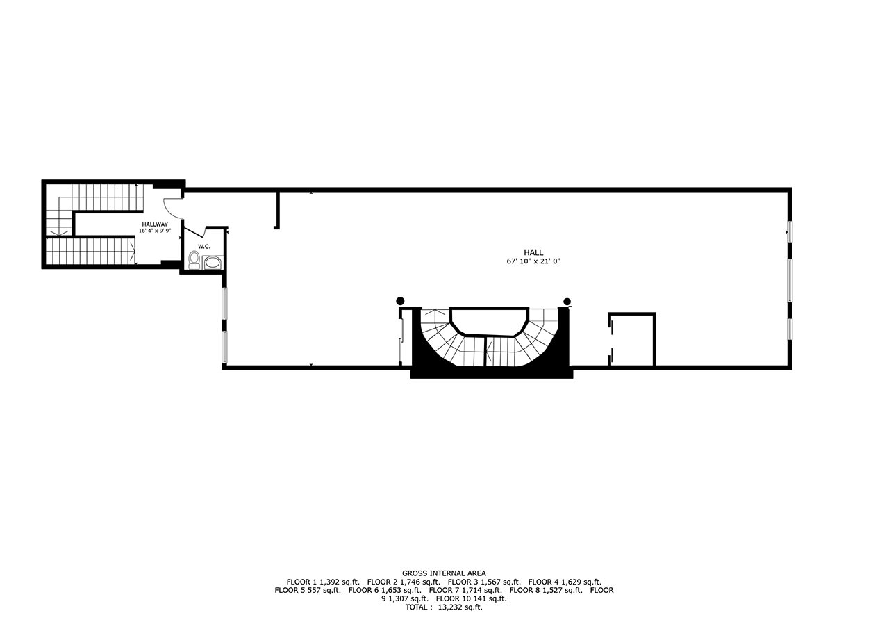
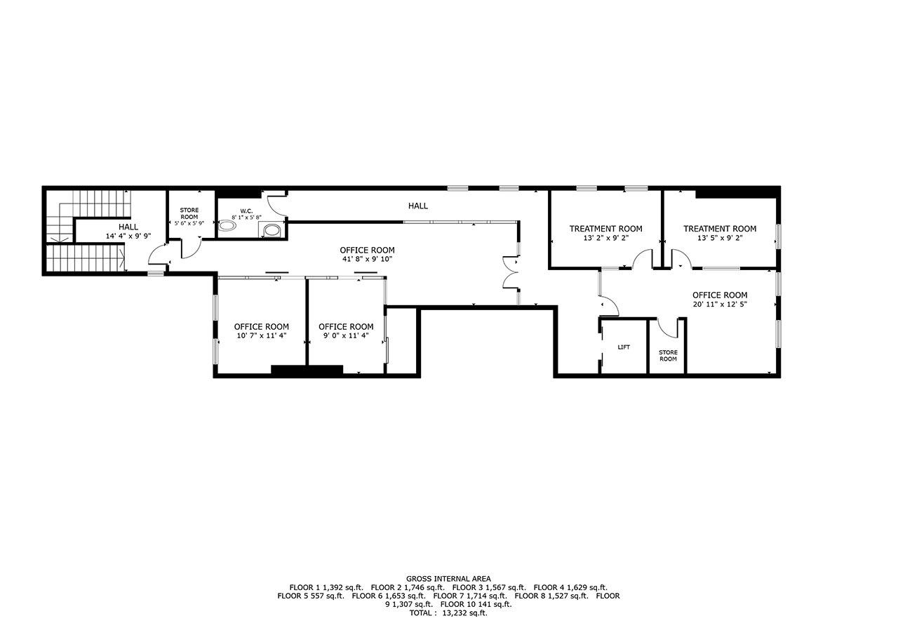
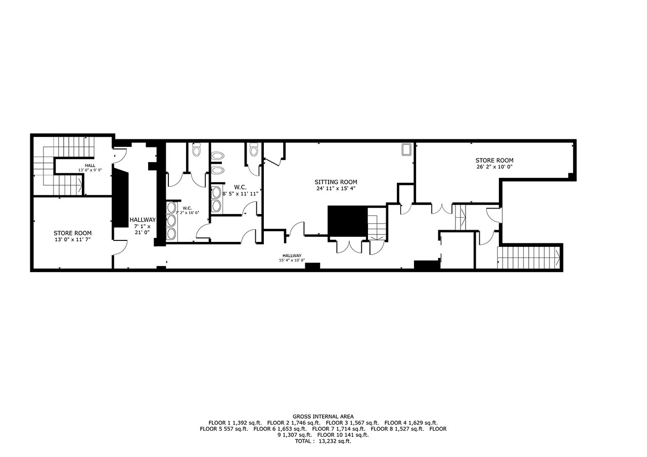
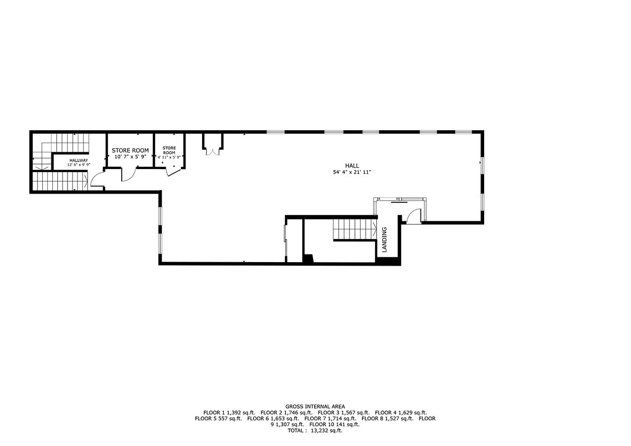
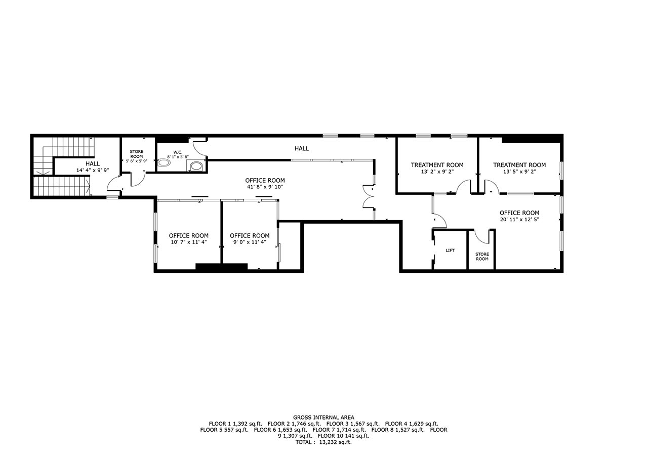
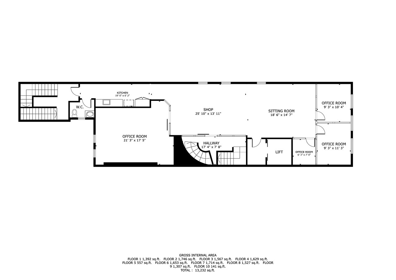
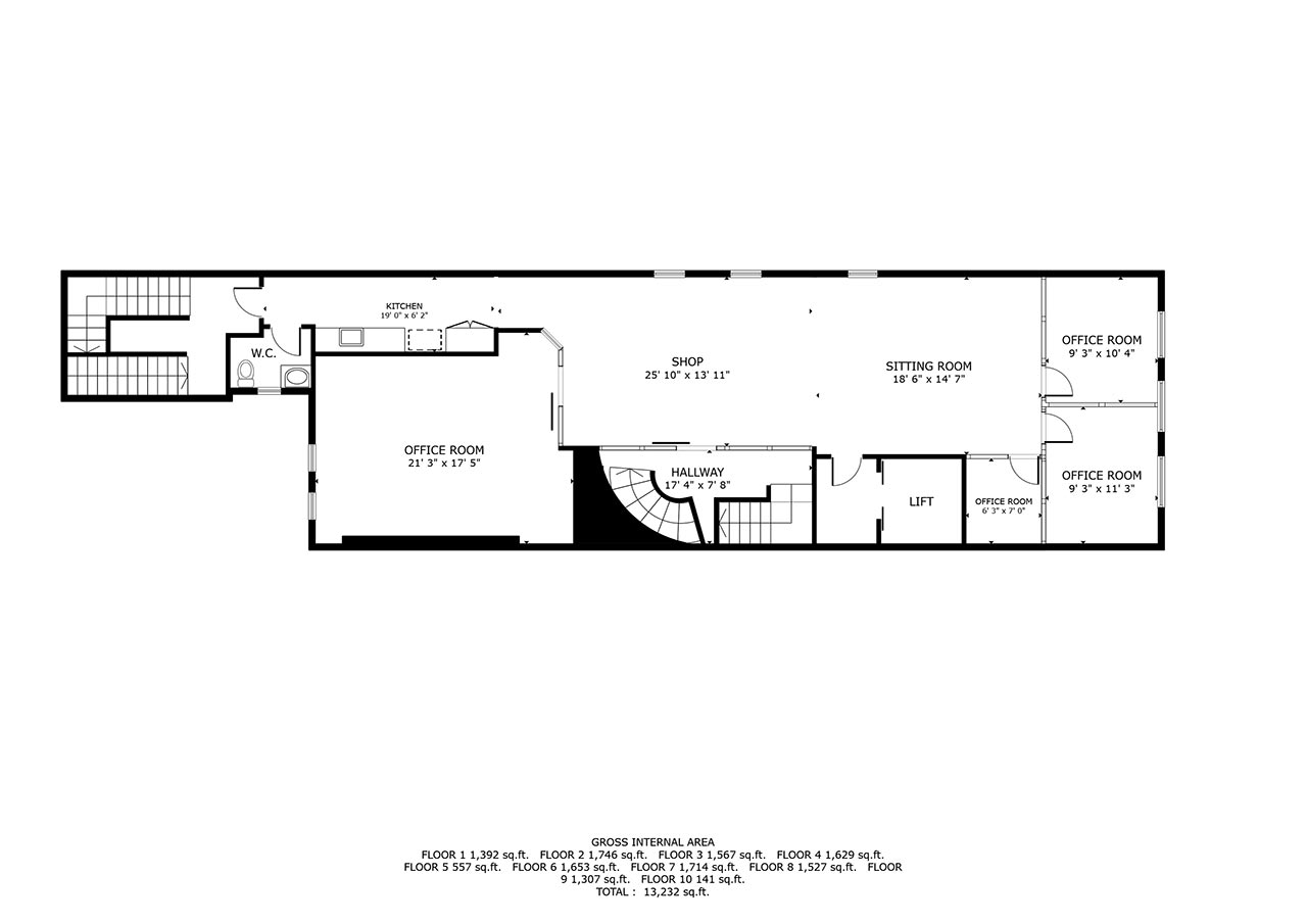
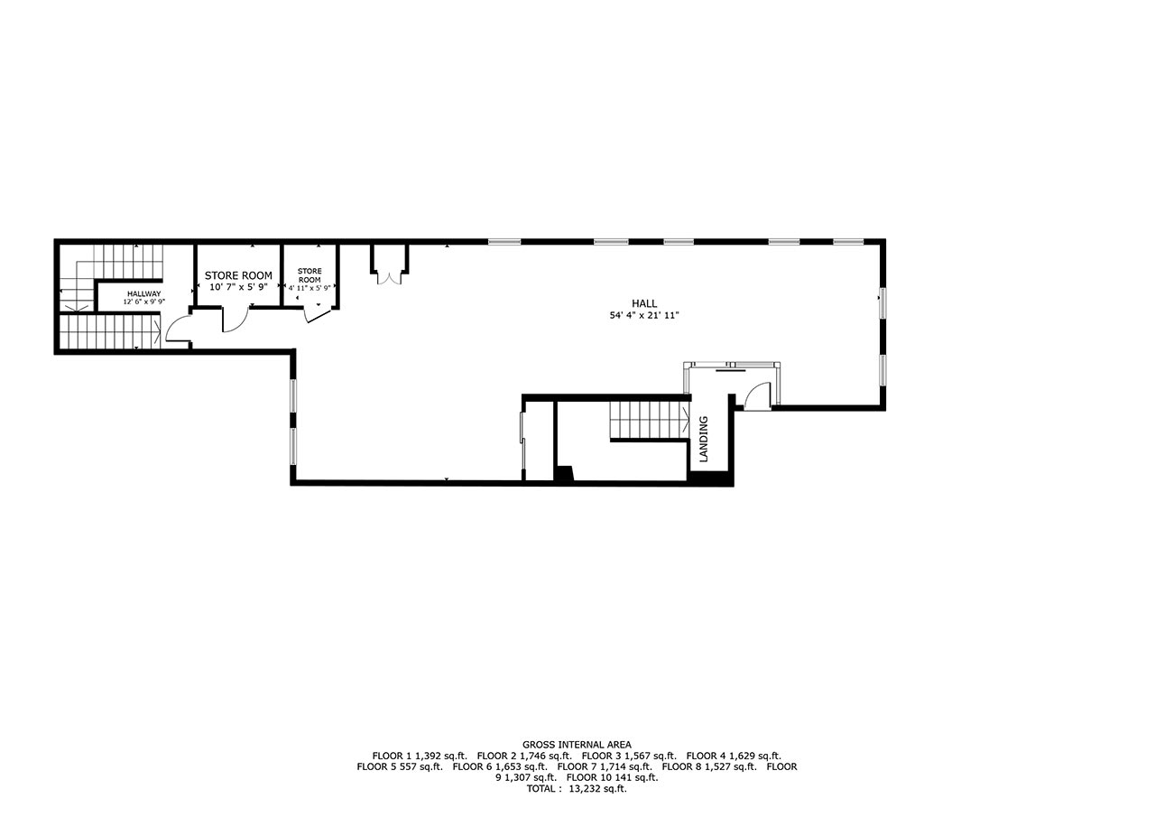
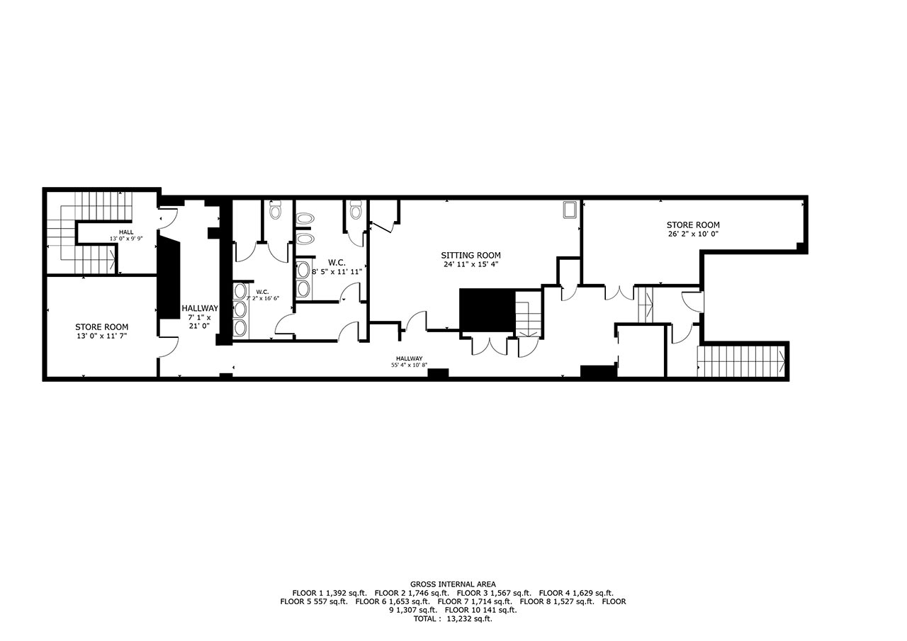
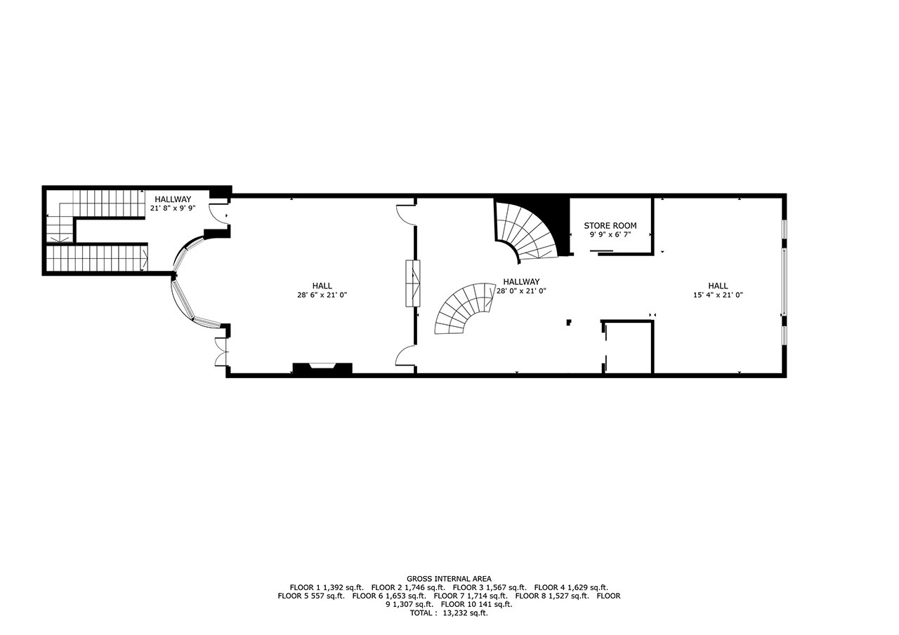
FirstLook Services

10 West 56th Street

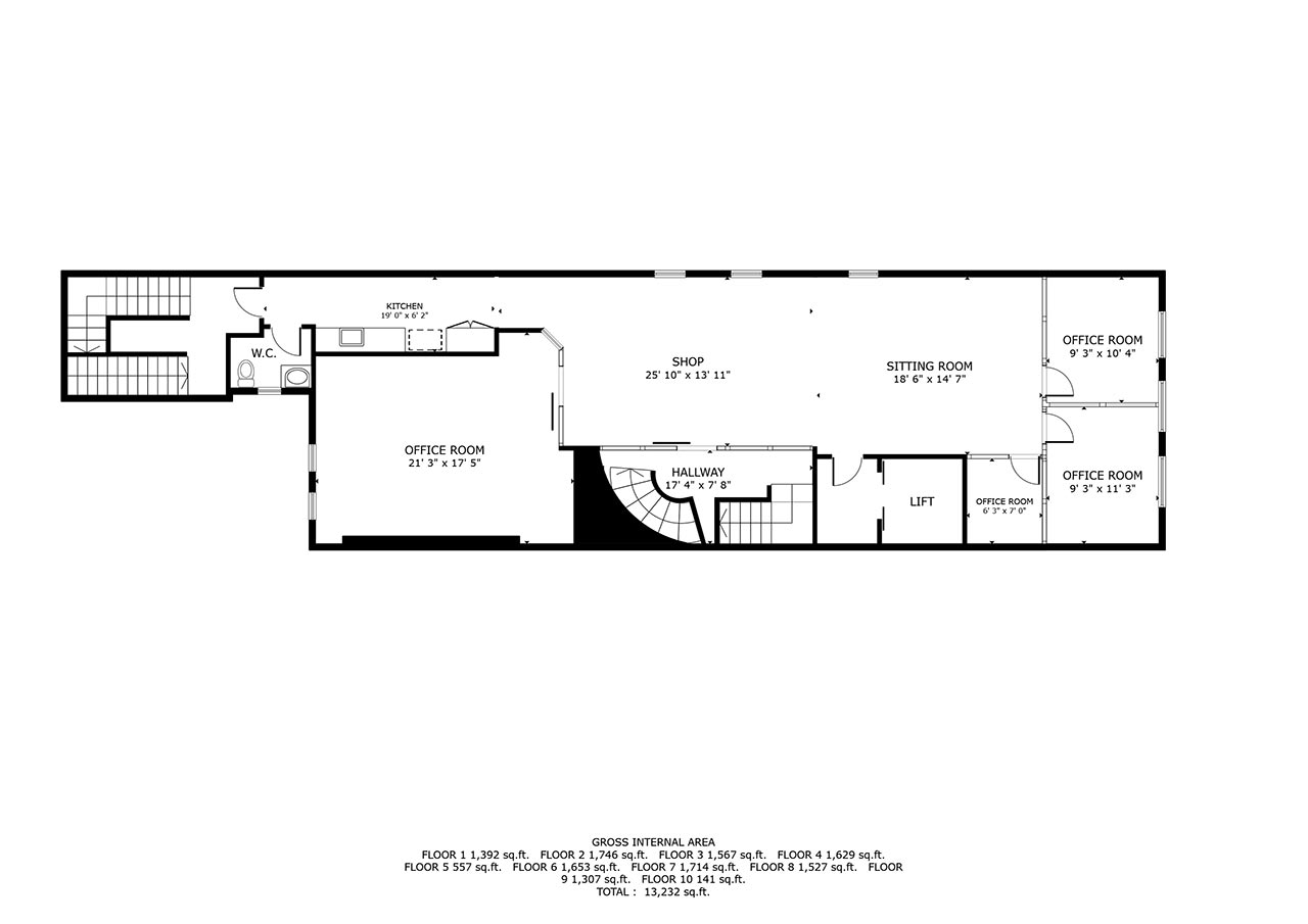
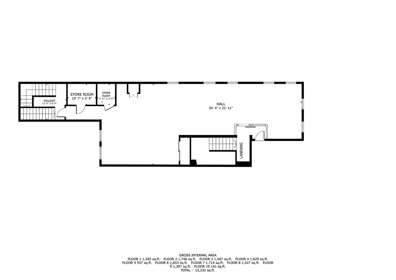
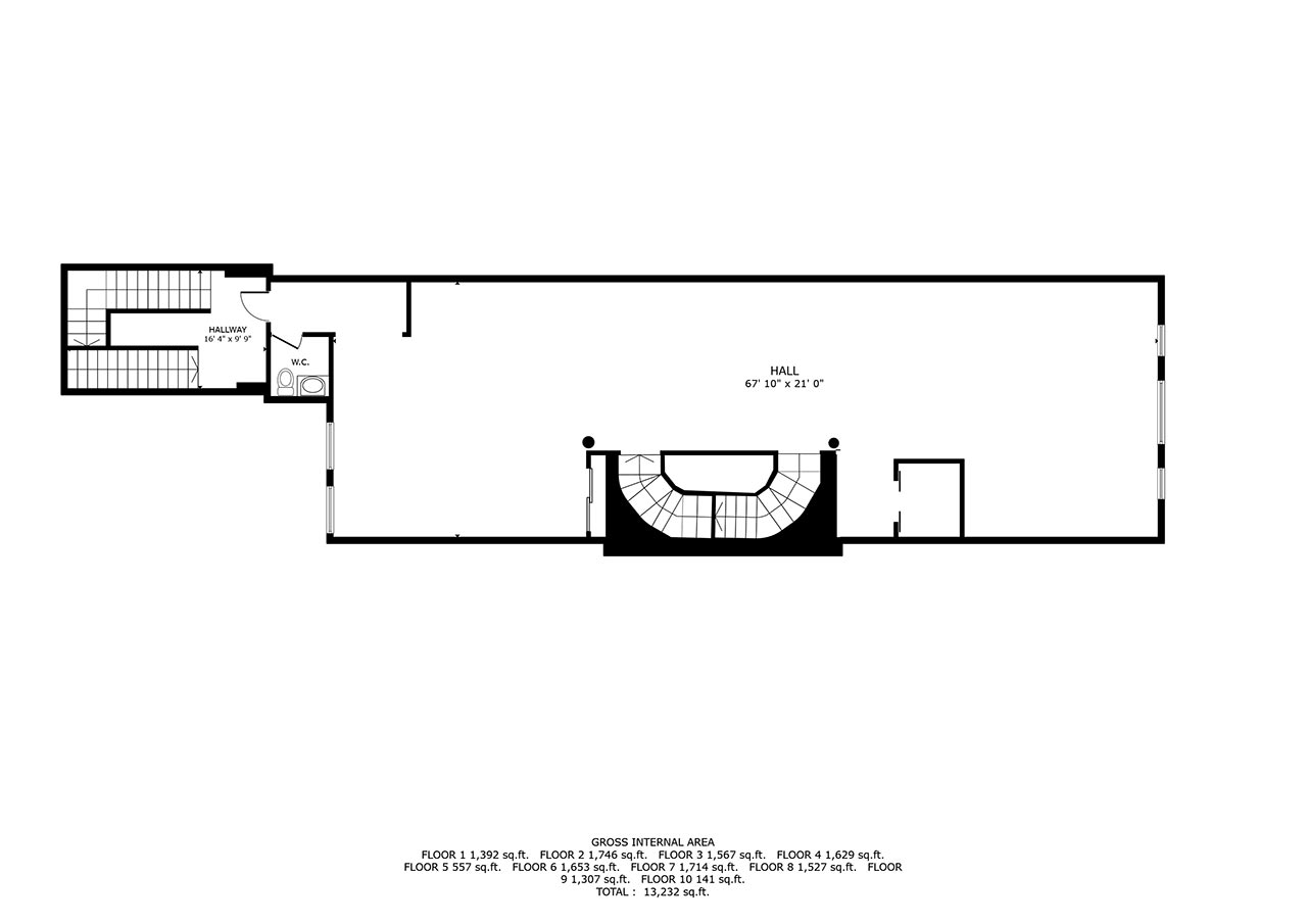
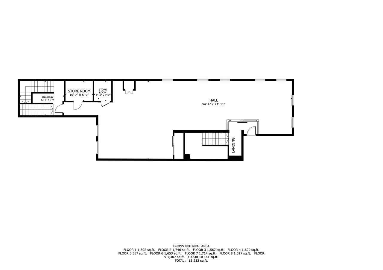
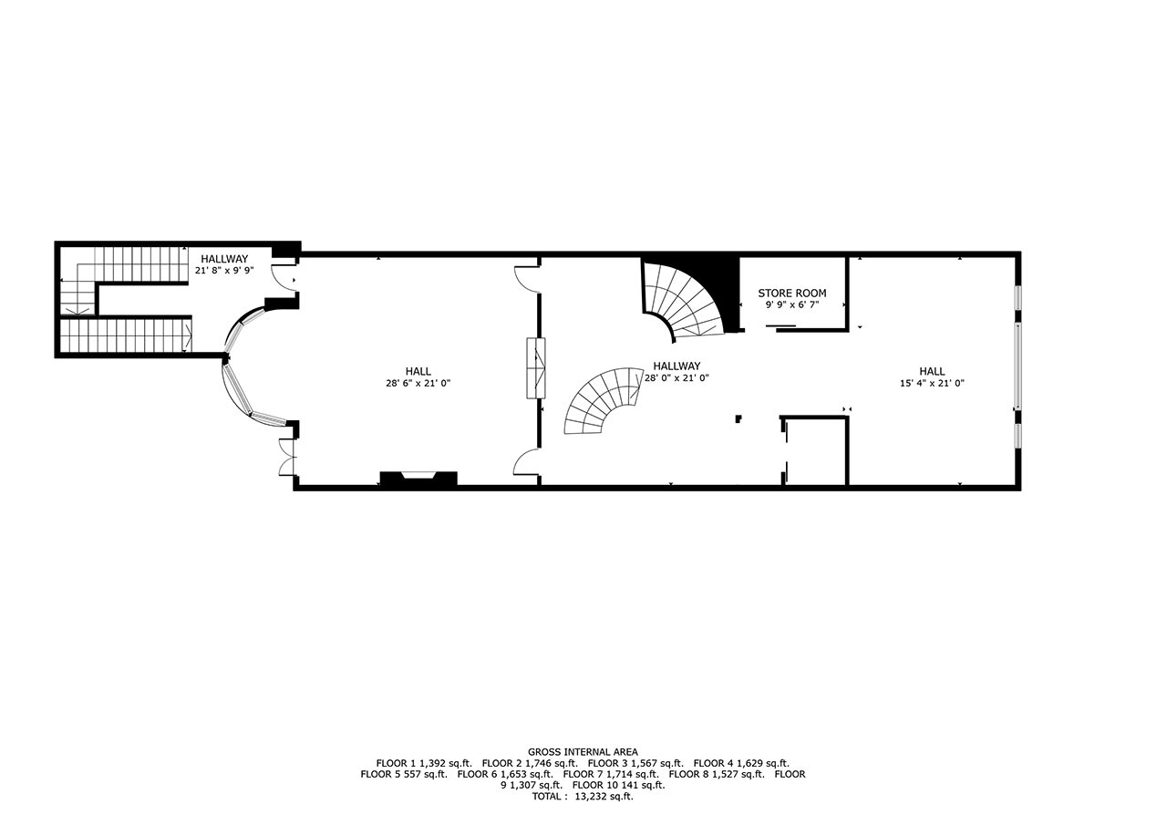
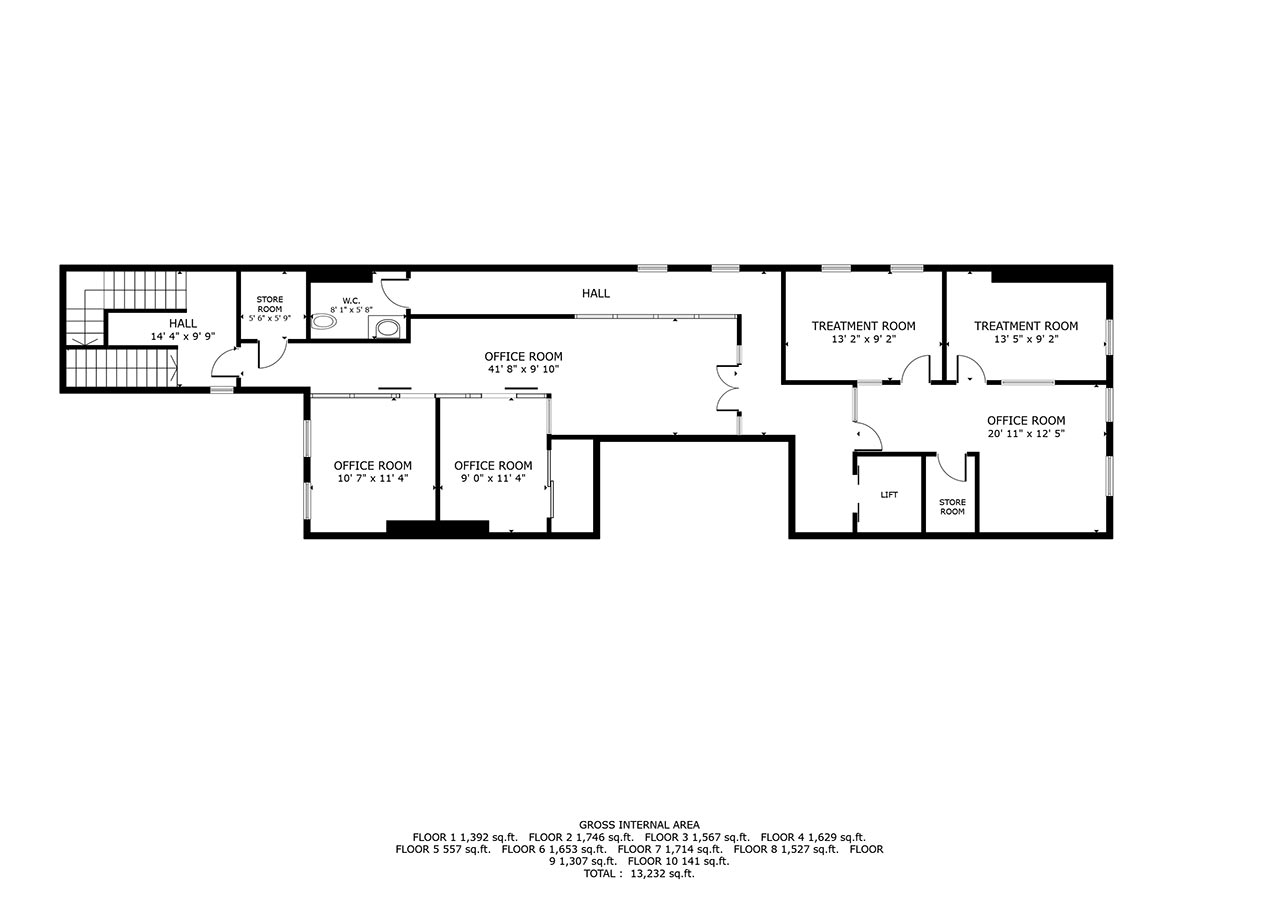
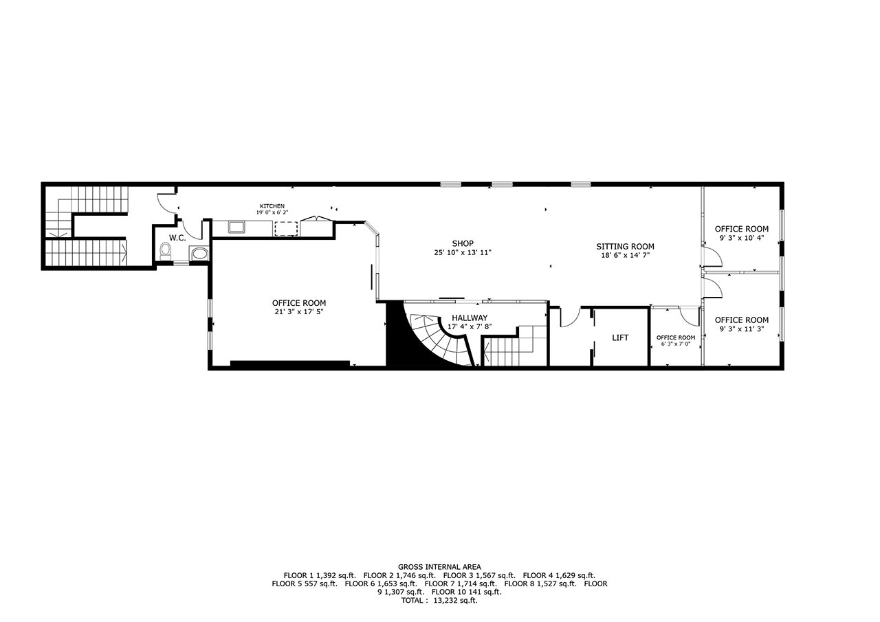
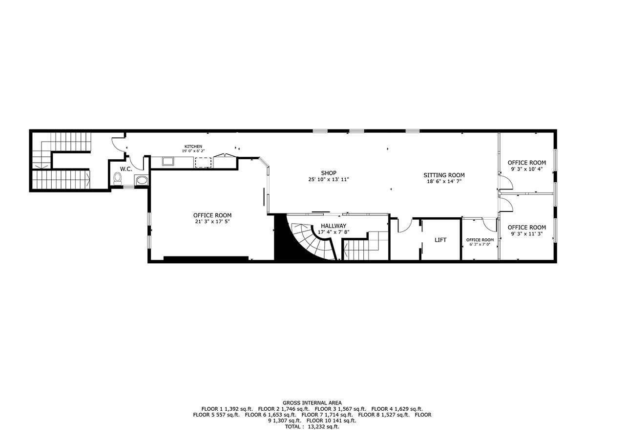
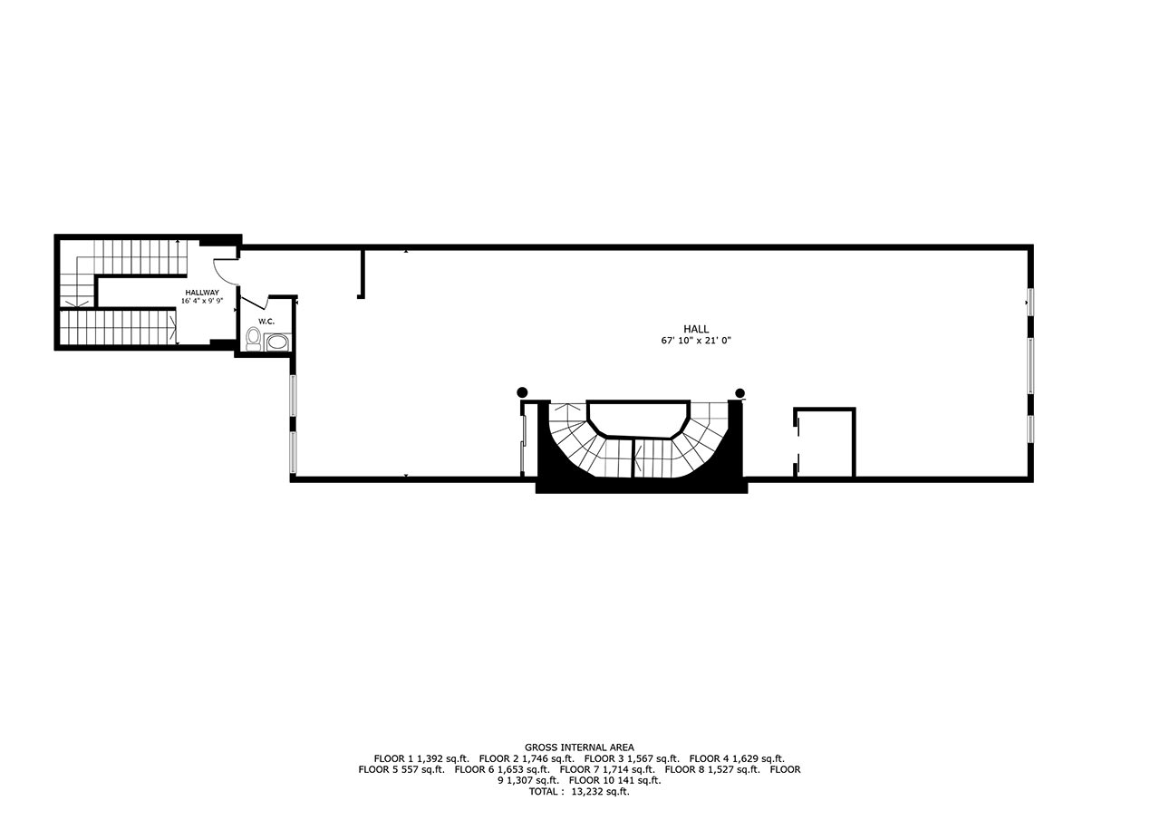
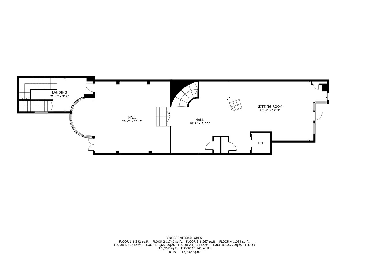
This is an interior scan of a historic Manhattan building.

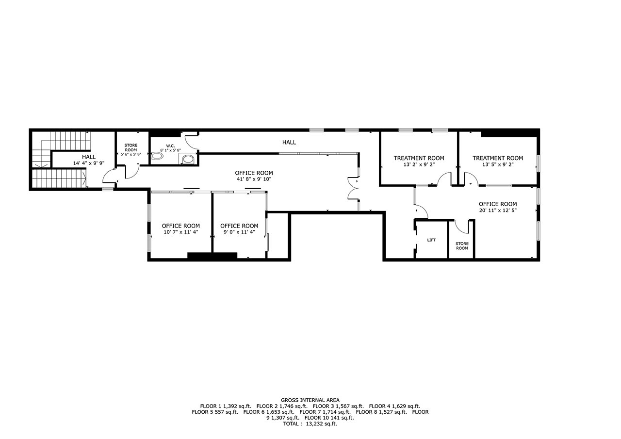
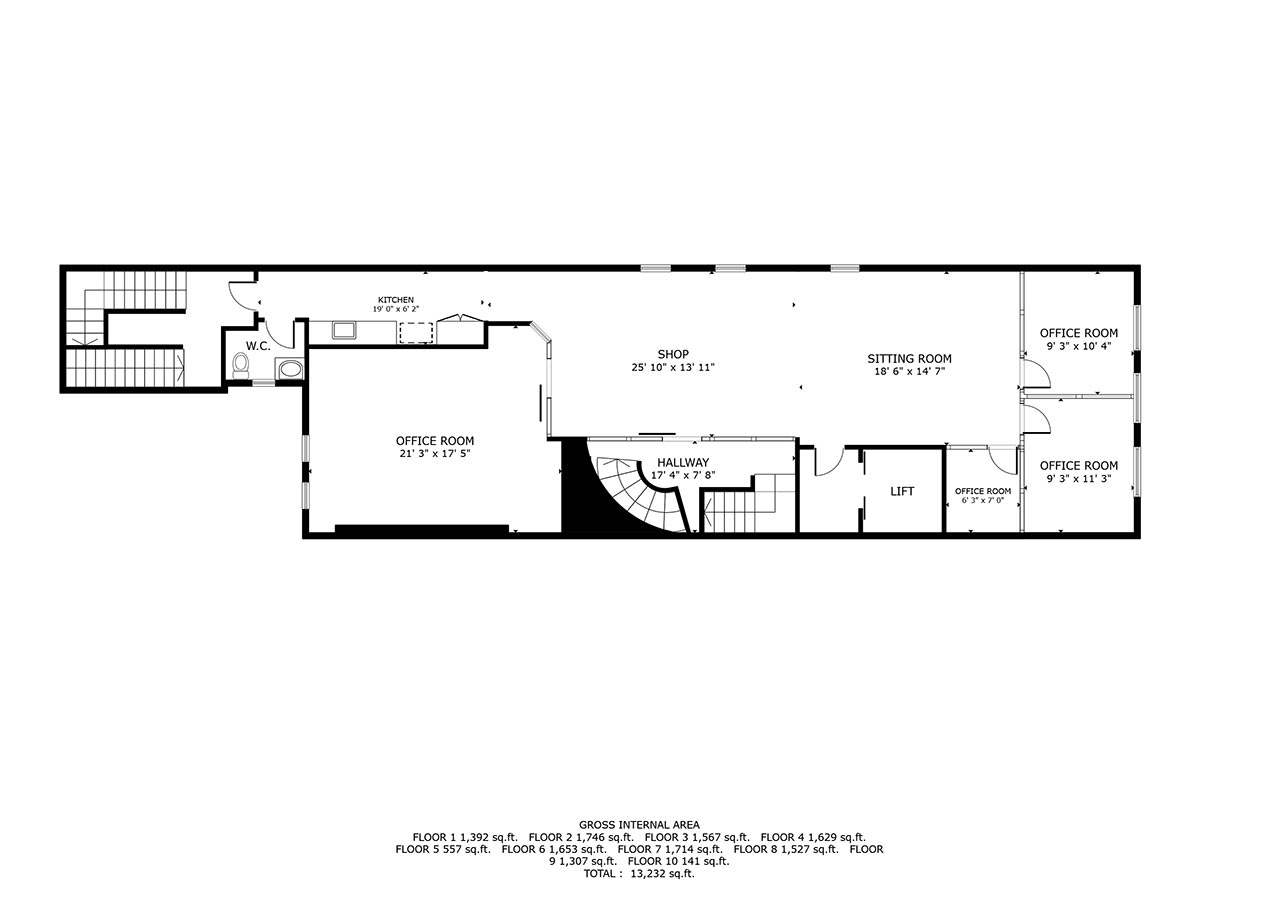
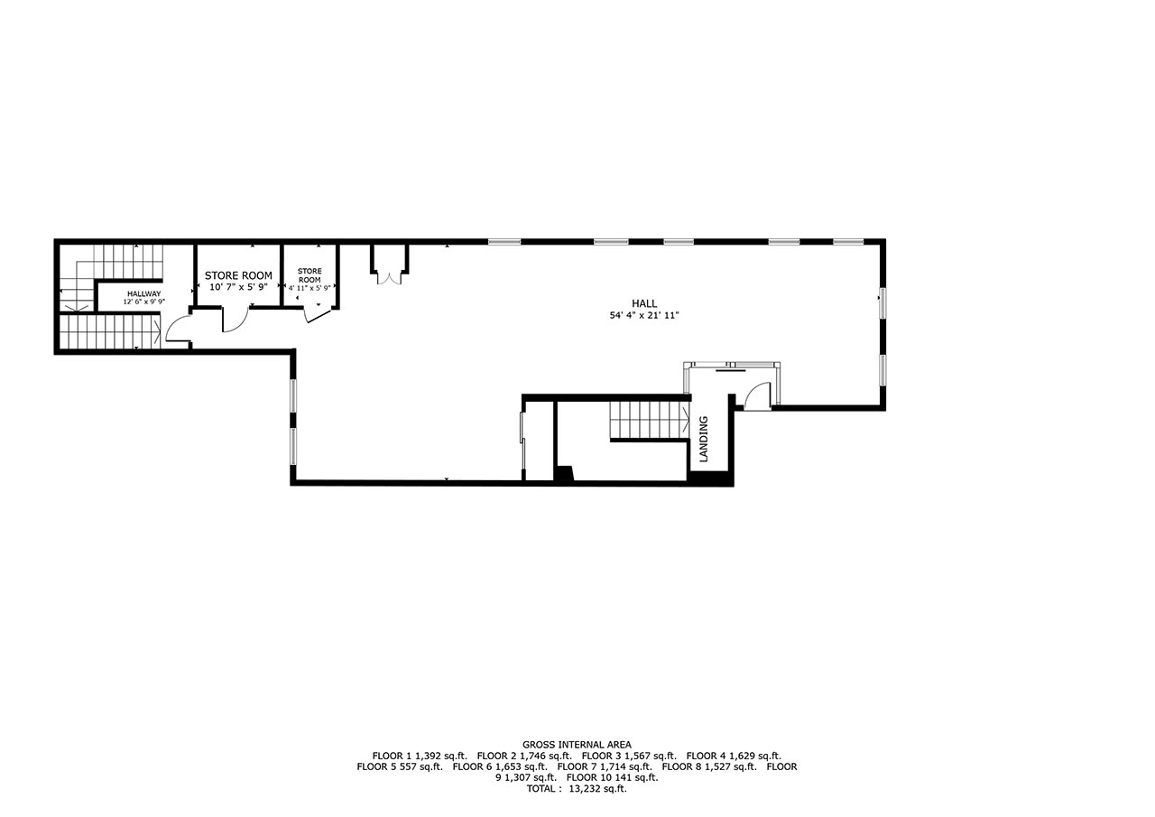
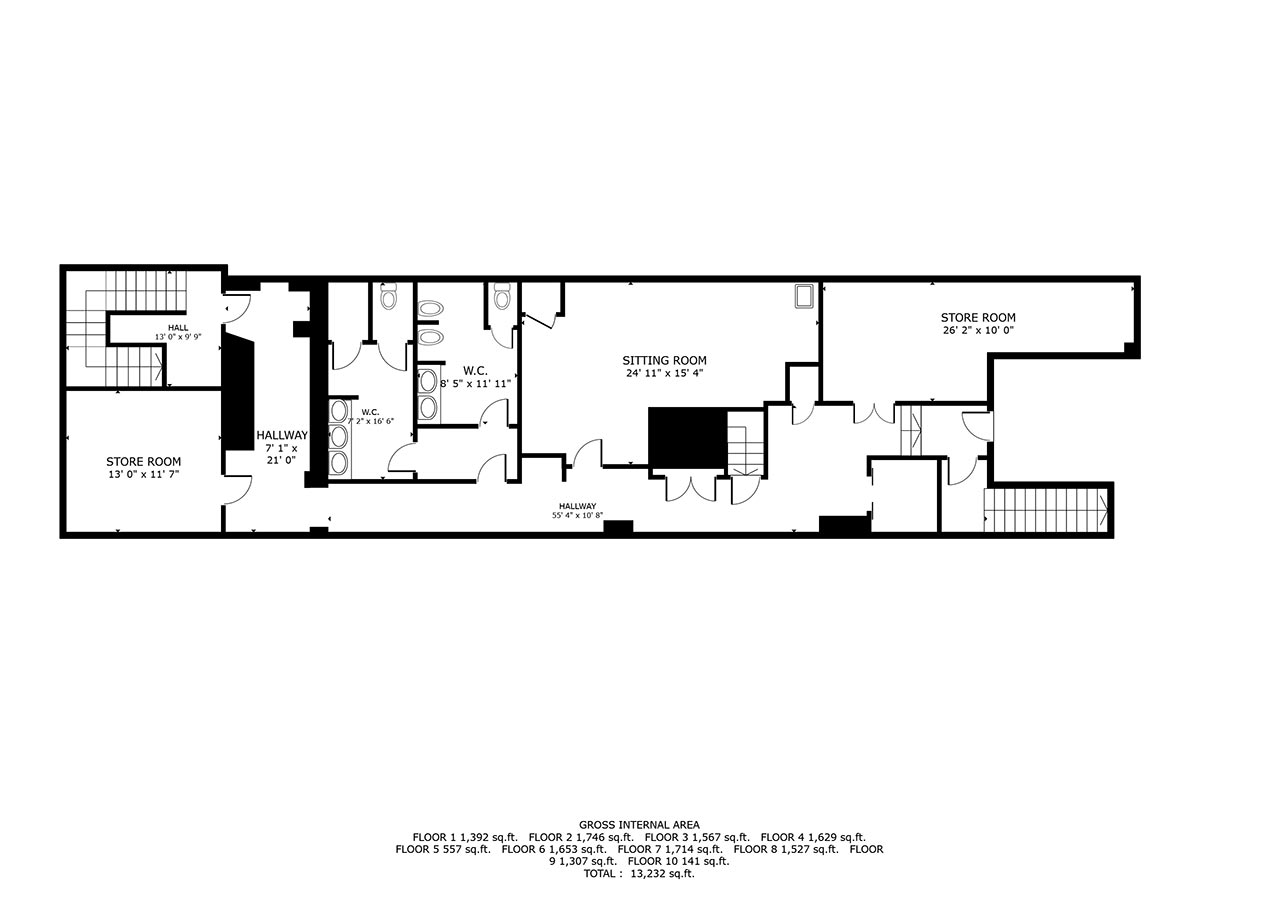
We turned over a revit model, a point cloud, and floor plans.

Skip to content